Eric DUBOIS Agence
Télécharger la fiche

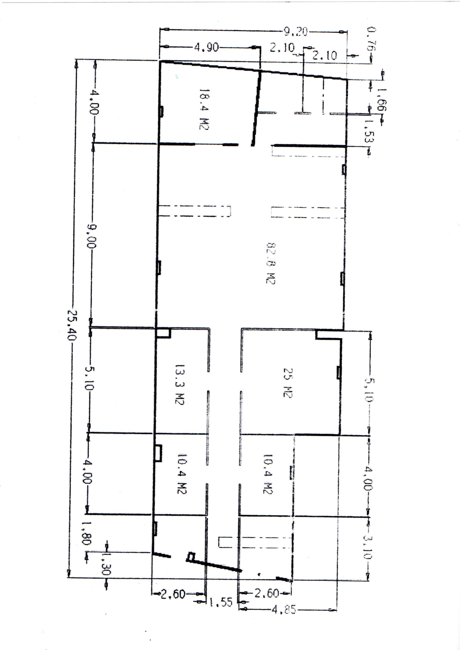
Local professionnel 196.15 m²

Tours (37000)
349 800 € Référence 225

A propos de ce bien

Découvrez ce local commercial ou espace de bureau de 196 m², idéalement situé à Tours (37000). Profitez d'un emplacement très passant qui garantit une excellente visibilité pour votre activité.

Ce bien se compose d'un vaste espace principal, de doubles sanitaires et d'un sous-sol aménagé pour le stockage, offrant une surface utile supplémentaire. L'accès est facilité avec la présence d'un arrêt de bus juste au pied du local.

Le local est en bon état d'usage, prêt à accueillir votre entreprise. Il bénéficie d'un accès PMR (Personnes à Mobilité Réduite) et de WC aménagés, répondant aux normes d'accessibilité.

Situé au sein d'une copropriété aux charges très faibles (seulement 56 €/mois), cet investissement est d'autant plus attractif.

Que vous soyez à la recherche d'un espace pour une boutique, des bureaux ou une activité de services, ce local offre un potentiel considérable grâce à sa surface généreuse et sa localisation stratégique.

Caractéristiques de ce bien

Activités

  • Type de transaction Local professionnel

Agencement

  • Superficie m2 196,15 m²

Equipements

  • Chauffage individuel : convecteur (electrique)

Secteur

  • Code postal 37000
  • Ville Tours

Diagnostics énergétiques

Consommation énergétique
A B C D E F G
Emission de gaz à effet de serre
A B C D E F G
DPE ANCIENNE VERSION

Informations financières

Prix de vente honoraires inclus 349 800 €

Autour du bien

  • Commerces et santé
  • Loisirs
  • Ecoles
  • Transports
  • Pratique

Calcul des mensualités

* Champs obligatoires